manage

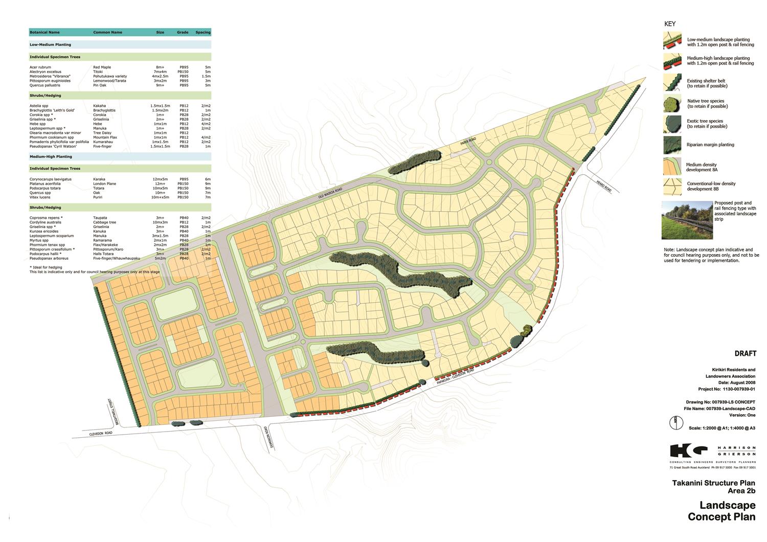
Takanini Area 2B

Client: Kirikiri Residents and Landowners Association Incorporated.

Services:  Management of all services to effect rezoning of land from rural to residential.

Year: 2003 - 2010

This 43 hectare residential development was successfully rezoned in 2009 from rural to residential. The development was handed over to the 15 indivual land owner / developers who are in the process of constructing the subdivisions and houses with 25% complete as at end of 2016.

}