re-zoning

Takanini Area 6

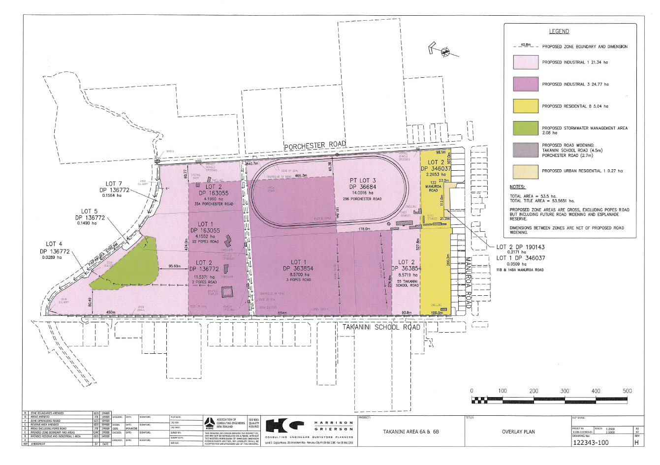
Client: Takanini Structure Plan Area 6 Limited

Services: Management of all services to effect rezoning of land from rural to commercial.

Year: 2006 - 2011

The assembly of several land holdings totalling 53 hectares and preparing a Private Plan Change moving the zoning from rural to a mixture of industrial zonings and residential buffer zones; the adoption of a public plan change and the handover to individual owners to proceed with their individual land holdings.

}